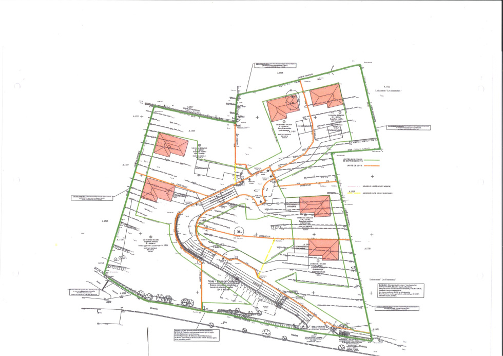
Description de l'offre
Au sein d'un quartier résidentiel situé sur le haut du quartier des valettes, lotissement comprenant 6 lots entièrement viabilisés. Superficie des lots comprise entre 1065 m² et 1650 m² Terrains en restanques. Position dominante avec vue trés dégagée. A Partir de 295.000 euros
