0
×
Recherche avancée
5KM
10KM
25KM
Critères supplémentaires
Piscine
Parking
Terrasse

VENCE centre ville. Appartement à rénover. Parking sous-sol. Idéal Investisseur.

< Retour

Partager sur

Exclusivité

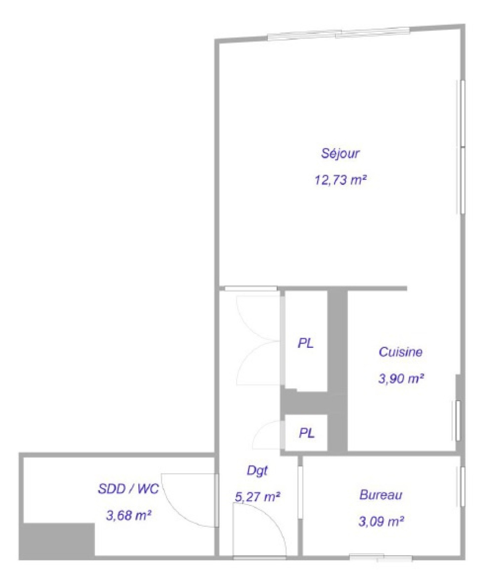
Appartement 28.67 m² - 1 pièce - Vence (06140)

Ref 1846
gallery loader
Prix 106 000

Description de l'offre

Opportunité unique en plein cœur de ville ! Découvrez cette ancienne loge de gardien à rénover entièrement, offrant un potentiel exceptionnel pour créer votre espace de vie idéal ou un investissement locatif attractif. Située au sein d'une résidence de centre-ville, cette loge bénéficie d'un emplacement privilégié, à proximité immédiate de toutes les commodités, des commerces et des transports en commun. Ce bien rare comprend également un parking en sous-sol, un atout majeur en centre-ville. Imaginez les possibilités offertes par ce volume à transformer selon vos envies : studio cosy, petit appartement fonctionnel ou bureau indépendant.
Les informations sur les risques auxquels ce bien est exposé sont disponibles sur le site Géorisques

Descriptif du bien

Code postal 06140


Surface habitable (m²) 28,67 m²


Surface loi Carrez (m²) 28,67 m²


Nombre de pièces 1


Ascenseur NON


Vue Citadine


Nb de salle d'eau 1


Cuisine SEPAREE


Mode de chauffage Gaz


Type de chauffage TRAD_TYPE_CHAUFF_CHAUDIERE


Format de chauffage Collectif


Balcon NON


Terrasse NON


Murs mitoyens 1


Cave NON


Exposition OUEST


Année de construction 1965


Copropriété OUI


plan de sauvegarde NON


Prix de vente 106 000 €


Les honoraires d'agence seront intégralement à la charge du vendeur  


Diagnostics de performance énergétique

DPE
DPE

Montant estimé des dépenses annuelles d'énergie de ce logement pour un usage standard est compris entre 880 € et 1 120 € . 2021 étant l'année de référence des prix de l'énergie utilisés pour établir cette estimation.

Cette annonce vous intéresse ?

* Champs obligatoires

* : Les informations recueillies sur ce formulaire sont enregistrées dans un fichier informatisé par La Boite Immo agissant comme Sous-traitant du traitement pour la gestion de la clientèle/prospects de l'Agence / du Réseau qui reste Responsable du Traitement de vos Données personnelles.
La base légale du traitement repose sur l’intérêt légitime de l'Agence / du Réseau.
Elles sont conservées jusqu'à demande de suppression et sont destinées à l'Agence / au Réseau.
Conformément à la loi « informatique et libertés », vous pouvez exercer votre droit d'accès aux données vous concernant et les faire rectifier en contactant l'Agence / le Réseau.
Si vous estimez, après avoir contacté l'Agence / le Réseau, que vos droits « Informatique et Libertés » ne sont pas respectés, vous pouvez adresser une réclamation à la CNIL.
Nous vous informons de l’existence de la liste d'opposition au démarchage téléphonique « Bloctel », sur laquelle vous pouvez vous inscrire ici : https://www.bloctel.gouv.fr 
Dans le cadre de la protection des Données personnelles, nous vous invitons à ne pas inscrire de Données sensibles dans le champ de saisie libre
Ce site est protégé par reCAPTCHA, les Politiques de Confidentialité et les Conditions d'Utilisation de Google s'appliquent.

La ville de Vence (06140)

Notre Agence


Agences Immobilières Vence Immo


Nous suivre sur

Adhérents